PIXNET Logo登入

用愛打造我的家

跳到主文

一個充滿溫馨和樂的家就是我的帝寶人生


試吃 試用 邀稿聯絡信箱:

lifa6159@yahoo.com.tw

部落格文章及圖片為個人創作
禁止複製或轉載文章及照片 盜用圖文必提出法律訴訟

部落格全站分類:生活綜合

  • 相簿
  • 部落格
  • 留言
  • 名片
  • 2月 08 週三 201211:06
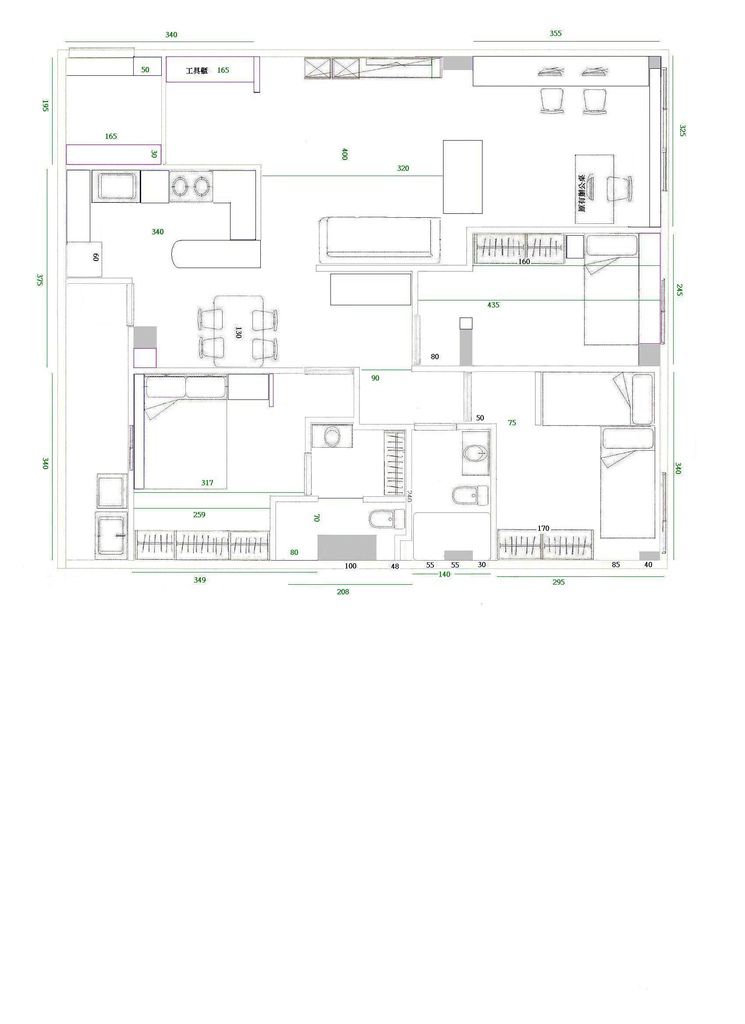
  • 廚房和主臥衛浴

格局定案_次草圖.JPG


看看廚房的動線是否更好呢
主臥衛浴因為管路的牆好大 所以很難規劃
(繼續閱讀...)
文章標籤

叮鈴鈴 發表在 痞客邦 留言(1) 人氣(173)

  • 個人分類:裝潢設計草圖
▲top
  • 12月 16 週五 201114:01
  • 格局變動

格局定案_次草圖2.JPG
  為了光線充足 不改變窗戶大小   書房的地方照原有尺寸
  這樣會使哥哥的房間變很小  不夠還算夠用(得跟88討論一下)
  廚房~爐 水槽 冰箱的擺放想了很久~因為有樑柱和風水上的問題....
(繼續閱讀...)
文章標籤

叮鈴鈴 發表在 痞客邦 留言(0) 人氣(89)

  • 個人分類:裝潢設計草圖
▲top
  • 11月 15 週二 201115:03
  • 廚房重新規劃

格局定案.JPG
        
(繼續閱讀...)
文章標籤

叮鈴鈴 發表在 痞客邦 留言(0) 人氣(66)

  • 個人分類:裝潢設計草圖
▲top
  • 8月 31 週三 201115:46
  • 浴廁規劃

格局定案.JPG
  
(繼續閱讀...)
文章標籤

叮鈴鈴 發表在 痞客邦 留言(0) 人氣(122)

  • 個人分類:裝潢設計草圖
▲top
  • 8月 05 週五 201111:47
  • 大隔局確定

我的家-柱.JPG
前天突然想到變更所有隔局
把餐廳連結廚房做半開放式
客廳因此變大
後面的走道縮小(感謝AMY的提點^^)
(繼續閱讀...)
文章標籤

叮鈴鈴 發表在 痞客邦 留言(0) 人氣(47)

  • 個人分類:裝潢設計草圖
▲top
  • 8月 03 週三 201110:18
  • 一根柱子的影響

我的家-柱.JPG
因為男孩房門旁這個寬柱
整個空間都無法好好規劃
以前的公寓好奇怪
所有樑柱都不對稱  大小長寬也不一
(繼續閱讀...)
文章標籤

叮鈴鈴 發表在 痞客邦 留言(0) 人氣(66)

  • 個人分類:裝潢設計草圖
▲top
  • 8月 02 週二 201112:53
  • 更改主臥 男孩房床位配置

我的家888-1.JPG
  
(繼續閱讀...)
文章標籤

叮鈴鈴 發表在 痞客邦 留言(0) 人氣(78)

  • 個人分類:裝潢設計草圖
▲top
  • 7月 19 週二 201123:59
  • 小孩房更正

我的家88.JPG
老公的工程排到農曆七月後了
今天更正主臥和小孩房
是目前自己最想要的隔局
不管了~先這樣吧!
(繼續閱讀...)
文章標籤

叮鈴鈴 發表在 痞客邦 留言(1) 人氣(61)

  • 個人分類:裝潢設計草圖
▲top
  • 7月 14 週四 201122:18
  • 主臥太小!!


考慮空間不夠大!
想了好久~我的床無法在主臥裏美美的擺對稱
 
  
(繼續閱讀...)
文章標籤

叮鈴鈴 發表在 痞客邦 留言(0) 人氣(82)

  • 個人分類:裝潢設計草圖
▲top
  • 7月 07 週四 201111:38
  • 沒什麼進度

我的家6.JPG
最近一個人忙兩個小孩真是忙翻了
加上老公也沒空和我討論修改後的設計圖
所以一個星期沒修改圖了
這兩天的想法是~應該可以在客廳(靠廚房)的牆面放茶鏡增加光線的折射
(繼續閱讀...)
文章標籤

叮鈴鈴 發表在 痞客邦 留言(0) 人氣(4)

  • 個人分類:裝潢設計草圖
▲top
123»

奇香食譜

個人資訊

叮鈴鈴
暱稱:
叮鈴鈴
分類:
生活綜合
好友:
累積中
地區:

自訂側欄

美食部落格

udn 美食達人 http://blog.udn.com/ringmami/article

我的臉書

參觀人氣

  • 本日人氣:
  • 累積人氣:

熱門文章

  • (3,671)金湧泉溫泉汽車旅館
  • (841)湯語雙泉(哈啦6.8溫泉會館)
  • (24,062)【動手做料理】適合早餐和配菜的美味沙拉 馬鈴薯沙拉
  • (23,926)【動手做料理】高麗菜茄汁蛋炒飯
  • (28,642)【動手做料理】海帶炒豆干絲
  • (180,623)【動手作料理】鮭魚豆腐味增湯
  • (19,626)【動手做早餐】火腿起司蛋餅
  • (4,757)【台北小吃】新莊四維市場 四維素食
  • (15,378)【基隆美食】基隆兩利小吃 餛飩大王
  • (11,083)【動手做料理】吉古拉炒小黃瓜

最新文章

  • 廚房萬用高CP值刀具 QQ Cooking 精選刀組
  • 【產品體驗】天然抗菌 溫和不傷肌膚 木酢達人洗碗液
  • 【產品試用】隨時享用健康美味輕食 TIGER虎牌380cc不鏽鋼真空食物罐
  • 【好書推薦】Amanda 的家常食譜-30分鐘動手做醃漬料理和健康醬
  • 【動手作料理】網路超夯 整顆蕃茄 蘑菇奶油燉飯
  • 【產品試用】輕量時尚 虎牌不銹鋼彈蓋式保溫保冷杯
  • 【宜蘭旅遊】爆米香製程解說 有機無毒宜蘭必敗伴手禮 三星青蔥文化館&菇菇茶米館
  • 【宜蘭旅遊】豐富水草生態資源與美味創意餐點的結合-勝洋水草休閒農場
  • 【試吃邀稿】熟成蜂蜜 健康椰子油 食在加分
  • 【第四屆安永饌食舞台 兒童料理募集大賽】營養可口鮮蝦丸子-安永鮮物

文章分類

toggle 食譜分享 (5)
  • 奇香食譜分享 (5)
  • 家常菜食譜 (29)
  • 蝦子料理食譜 (5)
  • 營養早餐 (7)
  • 健康飲料 (5)
toggle 生活記事 (5)
  • 心情點滴 (0)
  • 我的寶貝 (10)
  • 剖腹生產實錄 (2)
  • 網路行銷 (0)
  • 車禍雜記 (4)
toggle 台灣美食 (3)
  • 台北美食 (14)
  • 基隆美食 (12)
  • 基隆咖啡廳 (3)
toggle 台灣旅遊 (4)
  • 宜蘭景點 (2)
  • 基隆景點 (9)
  • 台北景點 (2)
  • 溫泉會館 (7)
toggle B肝日記 (3)
  • 干安能 (1)
  • b型肝炎 (2)
  • 干擾素 (1)
toggle 家庭保健 (2)
  • 益生菌 (0)
  • 關於健康 (3)
toggle 好文共賞 (1)
  • 文章心得分享 (3)
toggle 好康逗報 (2)
  • 團購美食 (7)
  • 店家推薦 (6)
toggle 裝潢設計 (3)
  • 搬家 (6)
  • 裝潢設計草圖 (27)
  • 風水有關係 (1)
  • 產品試用 (3)
  • 好書推薦 (1)
  • 未分類文章 (1)

熊試吃

Tag 標籤 關鍵字

BloggerAds